太阳能路灯安装指南,从准备到测试运行的全流程步骤
太阳能路灯安装指南,从准备到测试运行的全流程步骤
01太阳能路灯安装流程为了您的太阳能路灯能够正常运作,我们需要全面了解从准备到安装的每一个步骤。在这里,我们将为您提供从地基浇注到吊灯安装的全程指导。准备工作在开始安装之前
将那太阳能路灯予以安装,看上去好像是挺简单的,然而呢,一旦有一个步骤出现差错,那就极有可能致使路灯不亮,或者早早地就发生损坏,从而造成金钱以及时间的浪费。要做好充足的准备,并且严格依照步骤去进行安装,这乃是确保路灯能够长期稳定工作的关键所在。
安装前准备工作

进行安装之前,要将所有材料都准备齐全,这些材料涵盖太阳能电池板、LED灯头、灯杆、蓄电池、控制器、连接线以及紧固件。从工具角度来说,电钻、扳手、水平仪、混凝土还有挖掘工具都是绝对不能缺少的。材料的质量会对路灯的使用期限产生直接影响,故而建议挑选正规厂家所生产的产品。

作为准备工作核心的是选址,安装点需设法保证,从日出直至日落,太阳能板都能够被阳光直接照射,并且其周围并不会存在树木或者建筑物以供遮挡,与此同时,还需要对灯杆基础所具备的地质条件予以考虑,避开松软土质以及地下管线,从而确保安装能够稳固且安全 。
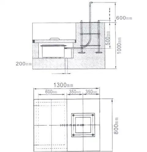
地基浇筑与养护
稳固路灯的根基是地基,依据灯杆的高度以及当地的风力状况,来确定基础坑的深度与大小,一般而言深度要达到灯罩灯管高度与灯架主杆高度之和的六分之一往上,坑底应当扎实地夯实,之后放置用于路灯安装施工的预埋件以及地脚螺栓。
浇筑之际,得借助水平仪来保证那预埋件的上表面呈现水平状态。并且,地脚螺栓的螺纹部分必须要受到保护。要运用强度等级不低于C25等级的混凝土来一次性完成浇筑工作。浇筑完毕之后,需要借助震动的方式进行夯实,以此来排除其中那些气泡。最后,将表面进行收光处理,使其变得平整光滑。

灯杆与组件组装
要在平整地面把各部件组装起来,之后将其进行整体吊装,这样效率会更高,而且也更安全。首先要把挑臂使用螺栓稳固地连接在主灯杆的指定位置上,要保证角度符合设计所要求的,一般情况下挑臂会与道路走向保持平行。
之后,把灯头安放到挑臂的末尾处予以固定,将内部线路连接妥当。紧接着,把太阳能板支架装在灯杆的顶端或者挑臂之上,把朝阳的角度调整适宜并进行临时固定。所有的接线口均需做好防水的处理。
电气系统连接
进行电气连接时,要依照“先负载后电源”这个原则去操作。首先,把灯头那儿的电源线同灯杆内部的主线相连,同时妥善做好绝缘处理事儿。随后,得把蓄电池放置到灯杆底部的蓄电池舱或者预先埋设好的基础箱里面。
将蓄电池跟控制器,用与之对应的规格的电缆去连接,要留意正负极绝对不可以接反。最终要把太阳能电池板连到控制器上。所有的接线都必须牢靠稳固,采用防水对接头或者接线盒,以此来防止出现进水短路的情况。
整体吊装与固定
吊装之前要进行最终检查,要确认所有螺栓都已经紧固,太阳能板的角度是正确的,灯头处于端正状态,接线不存在错误。得使用专业的吊装设备,在灯杆的吊装点系好吊带,然后缓缓地起吊 。

把灯杆底部的法兰盘,朝着基础预埋螺栓那边,慢慢下落,要保证所有螺栓都能进到孔位里。接着,拿水平仪,从两个互相垂直的方向,去校正灯杆的垂直度,借助螺母来进行细微调整。最终,用扳手,按照对角的顺序,逐个依次拧紧所有螺母。
安装后调试与维护
完成安装之后开展系统调试,于白天之时遮挡太阳能板以此模拟夜晚情境,进而检查路灯是不是能够自动点亮,至于在夜晚或者光线昏暗之时,核查路灯是否能够正常熄灭且开始充电 。

长期的维护乃是保障,应当每一个月去检查灯杆是不是垂直,紧固件有没有松动,要定期清理太阳能板表面的灰尘以及鸟粪,特别是在多尘或者雨季过后的时候,在秋冬季节要留意去检查蓄电池的性能,在北方严寒地区需要选用低温性能良好的电池。
安装太阳能路灯时,您实际碰到的最大难题是啥?是选地址、做基础施工 、还是后续去调试线路呢?欢迎于评论区把您的经验分享出来,要是觉着本文挺有用,那就点赞予以支持 。
